Descripción
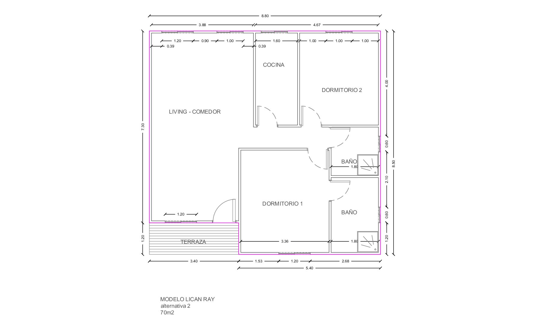
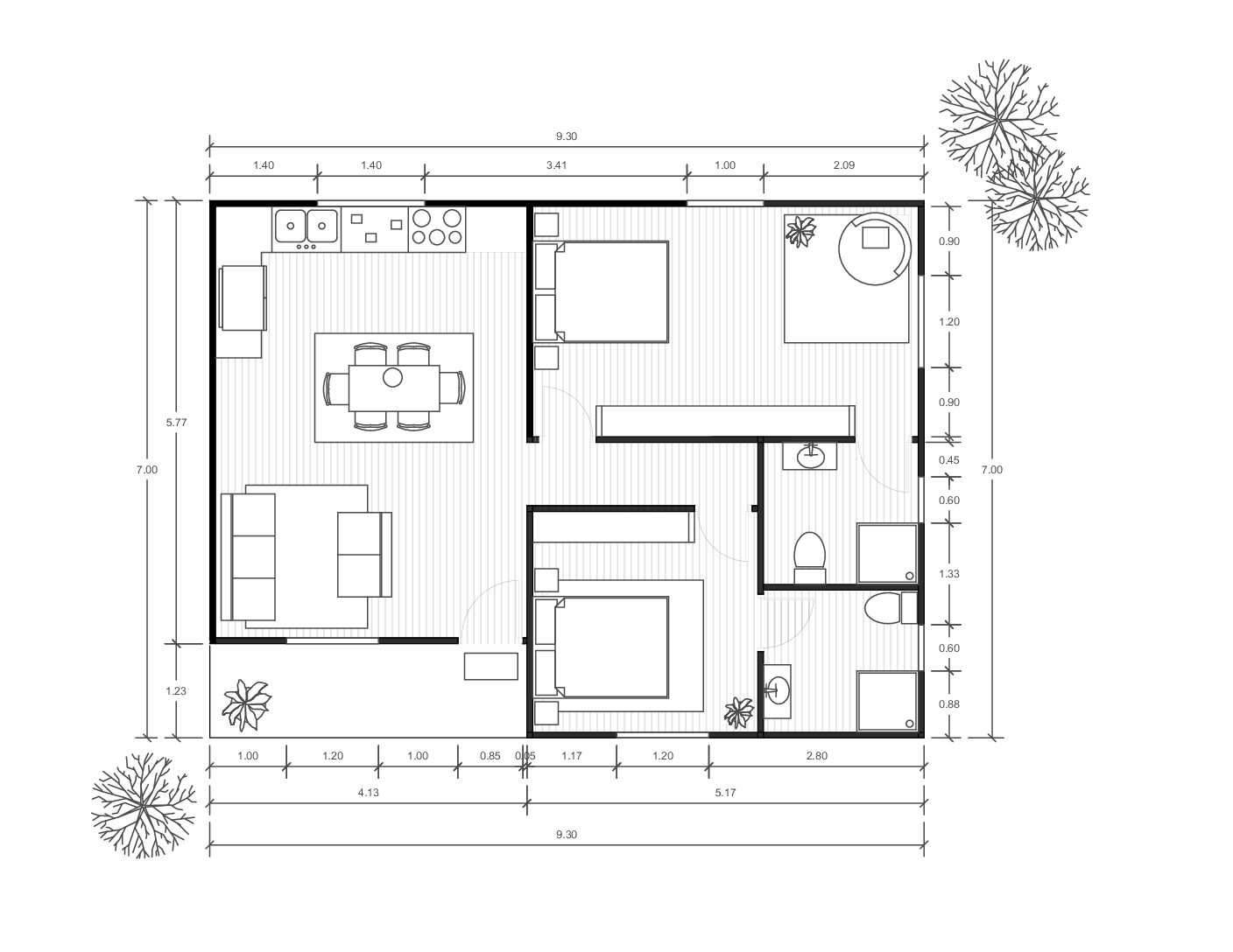
El Modelo Lican Ray ofrece entre 36 y 70 m², con 1 o 2 habitaciones y una distribución eficiente.
Compacto, funcional y accesible: una excelente opción para comenzar tu hogar con HCP Casas Prefabricadas.
TIPOS DE KIT
INICIAL
- Apoyos de hormigón
- Vigas Maestras 2×6 IPV (pino impregnado)
- Vigas de piso 2×4 IPV (impregnado)
- Piso de terciado de 18mm.
- Tabiquería interior de 2x 3 pino dimensionado
- Tabiquería interior de distribución sin revestimiento.
- Traslapo tinglado con protector de madera
- Puerta de acceso pino radiata con cerradura 0,35mm.
- Zinc acanalado
- Ventanas de PVC Americano
- Terraza de madera ipv
- Tapacán y Alero
- Hojalaterías
- Armado incluido
LLAVE EN MANO
- Apoyo de hormigón
- Vigas Maestras 2×6 IPV (pino impregnado)
- Vigas de piso 2×4 IPV (impregnado)
- Piso terciado de 18mm.
- Tabiques de 2×3 de pino dimensionado
- Traslapo tinglado con protector de madera
- Puerta de acceso con cerradura
- Zinc acanalado techo
- Ventanas de Termopanel
- Terraza de madera
- Aislación interior
- Muros de volcanita y pino Oregón con barniz
- Pintura y Terminaciones interiores y exteriores
- Piso vinilico en toda la casa
- Instalación eléctrica interior y tablero
- Gasfitería interior
- Alcantarillado interior
- Cerámica baño en muro de artefactos
- Artefactos sanitarios
- Calefont con gabinete
- Lavaplatos
- Cerámica en sector lavaplatos
- Puertas interiores con cerradura
- Vigas a la vista cepilladas y barnizadas
FOTOS
MODELOS
Comienza tu nuevo hogar hoy!
Cotiza con nosotros, seleccionando el tipo de Kit y Metros Cuadrados, así te responderemos a la brevedad, o si tienes dudas o consultas, háblanos directamente a nuestro WhatsApp
















No hay valoraciones aún.